7868 Arrowhead Lake Rd, Hesperia, CA 92345
Toggle Navigation
Images
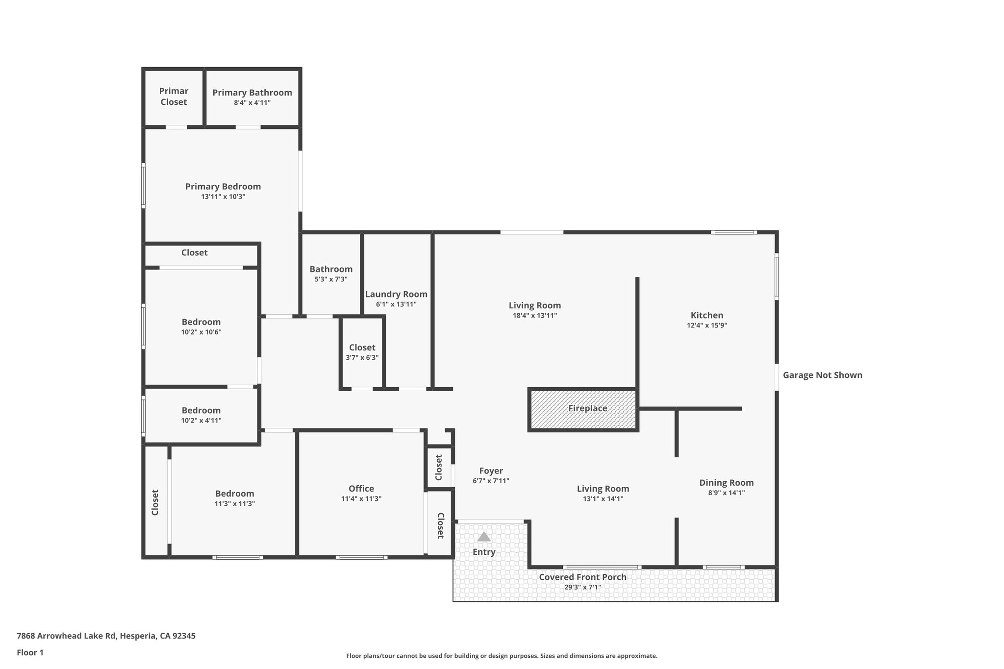
Floor Plans
3D Tour
Map
7868 Arrowhead Lake Rd
Hesperia, CA 92345
Scroll to Content
Images
Slideshow
Photo Grid
Hide
Previous
Next
Show more
Floor Plans
Slideshow
Photo Grid
Hide
Previous
Next
3D Tour